屯田兵とは?——北を守り・北を拓く
全道に37兵村7000戸
屯田兵制度は、樺太と千島からロシアの脅威が迫る中、北海道と樺太の防衛と開拓を目的として、明治6(1873)年12月に後に内閣総理大臣となる開拓使次官の黒田清隆の強い働きかけで創設されました①。
翌7年に第一陣として198戸が琴似に入植。以降、明治33(1900)年5月の士別兵村99戸まで、37兵村7337戸、家族を入れると約4万人が道内各地で開拓に従事しました②。
「屯田」は江戸時代にも
屯田兵は、普段は農民として開拓に従事し、緊急事態があれば軍隊として戦うものです。この制度は新しいものではなく、わが国には徳川家康が設けた「八王子千人同心」がありました。これは武田の遺臣を八王子に住まわせて農業に従事させ、戦時には江戸を守る兵隊として出陣させる半士半農の郷士です。
このような歴史があることから、幕末に樺太までロシアの勢力が及んだとき、八王子千人同心は、蝦夷島の防備に当たりたいと志願して、日高から釧路の太平洋沿岸部におよそ100人が入植しました。
ロシアのコサックを取り入れる
一方ロシアには「コサック」の制度がありました。これも平時には農耕・牧畜に従事し、非常時に兵士となって戦う集団で、東ヨーロッパに発祥したロシアが、自然環境の厳しいシベリアに進出する原動力となりました。樺太開拓使次官を務めたこともある黒田清隆③は、ロシアの制度をよく研究し、シベリアと北海道との共通点の多さから、この制度を北海道に取り入れることにしたようです。
初期は士族だけ
屯田兵には、明治維新の動乱によって身分を失った士族の救済という目的もありました。幕末の戊辰戦争で、新政府軍と戦った会津藩や伊逹藩の旧臣たち、また廃藩置県で家禄を失った士族たちを吸収するため、初期の屯田兵は士族に限られていました。明治8(1875)年の千島樺太交換条約を機に、政策の重点が北方防衛から開拓に移ったことで、明治23(1890)年10月の募集から平民に門戸が開かれています。
軍隊として厳しい規則
開拓と国防という二つの任務を負う屯田兵には、食糧・衣服・農具・生活必需品などのほか、農民としての生活基盤となる家屋と宅地、そして農地が与えられました。
一般入植者に比べるととても恵まれていましたが、北方防衛に当たる軍隊として開墾の他に軍事訓練も厳しく行われました。屯田兵を家長とする一家全員が屯田兵の厳しい生活規則に従いました④。
西南戦争と日露戦争を戦う
屯田兵は軍隊として、西南戦争と日清戦争、そして後備役ながら日露戦争に出征しています⑤。西南戦争では、薩摩に恨みを持つ者も多く、激戦地で奮戦しました。
日清戦争は動員されたものの訓練中に戦争が終わりましたが、明治37(1904)年2月に始まった日露戦争では、屯田兵を主体に創設された第七師団による出征部隊が同年8月に結成され、乃木将軍の主力として二〇三高地の激戦や奉天会戦に参戦しています。
北海道の骨格をつくる
屯田兵は、札幌からオホーツクにかけてのルート上に集中的に配備されました。当時これらの多くは原始のままの樹林帯。空知地方や上川地方、北見地方など、足を踏み入れることも躊躇される内陸部の発展に屯田兵は大きな役割を果たしました。士族に限られていた初期の屯田兵は、幼少から学問の手ほどきを受けた者が多く、地域の指導者としても活躍しました。屯田兵は近代北海道の骨格をつくった存在なのです。
【主要参考文献】
有馬尚経『屯田兵とは何か その遺勲と変遷』2020・幻冬舎メディアコンサルティング
伊藤広『屯田兵の研究』1992・同成社
松下芳男『屯田兵制史』1981・五月書房
琴似屯田百年史編纂委員会編『 琴似屯田百年史』1974・琴似屯田百年記念事業期成会。
北海道屯田倶楽部編『 開拓使最初の屯田兵 琴似兵村 復刻版』2024・北海道屯田倶楽部

①屯田兵設置及軍艦警備之儀黒田議官建議(出典:国立公文書館デジタルアーカイブ)

②屯田兵村の配置図(出典:北海道屯田倶楽部)

③黒田清隆(出典:国立国会図書館・近代日本人の肖像)

④屯田兵及び家族教令(蔵:深川市郷土資料館)

⑤明治28年4月、日露戦争に赴く臨時第七師団屯田兵第三大隊中隊、東京で撮影(蔵:旭川兵村記念館)

北海道の有形文化財に指定された旭川屯田兵・広沢徳治郎の「屯田絵巻」(蔵:旭川兵村記念館)
琴似をつくり、北海道を導いた琴似屯田

①琴似屯田兵村図(蔵:琴似屯田歴史館資料室)

②明治7年11月開村前の屯田兵屋郡(出典:北海道大学北方資料データベース)

③明治8年7月・琴似屯田兵の開墾着手記念写真(蔵:琴似屯田歴史館資料室)

④明治24年予備役編入の頃の琴似屯田兵(出典:『或る家の記録「屯田兵屋の百年」安孫子倫彦の③家系』工藤孝史1991①)

⑤琴似屯田兵・三戸部勘吉に与えられた西南戦争の褒章の記録(琴似屯田百年史編纂委員会『琴似屯田百年史』1974琴似屯田百年記念事業期成会)

⑥琴似屯田兵・安孫子倫彦の三女サクの「思い出の手記」より(出典:『或る家の記録「屯田兵屋の百年」安孫子倫彦の家系』工藤孝史1991)

⑦長沼町の北海道農業試験場本場にある安孫子孝次さんの胸像

⑧昭和11年、昭和天皇に拝謁した安孫子倫彦・孝次親子

⑨明治24年琴似屯田が現役を終えるにあたって屯田兵司令官永山武四郎が与えた諭告。現役を終えても北海道の拓地植民の根幹としての自覚を求めている
(蔵:琴似屯田歴史館資料室)
琴似地区の基盤となる
琴似屯田は、屯田兵制度最初の屯田です。それだけに開拓使を挙げて入念に準備が行われました。開拓使設置のおりに陸軍少将で薩摩の重鎮桐野利秋により選定された土地を、後に「サッポロビールの父」と呼ばれることになる開拓使大主典の松橋久成が、明治7(1874)年4月から区画割りを行いました①。
小樽と札幌を結ぶ札幌街道から北に向け、10間幅の中央道路を設け、これを中心として両側に間口十間ごとに1戸の兵屋を建てました②。一列に20戸、総数208戸が建てられます。建設には札幌の伊藤組が当たっています。この時の区画割りは、現在の琴似地区に引き継がれています。
主体は亘理と会津
明治8(1875)年1月より東北の士族を中心に琴似屯田兵の募集が行われ、5月に入村が行われました。兵屋番号の59番から60番までが酒田県の人たち、67番から105番までが青森県斗南藩———すなわち斗南に移動させられた旧会津藩の人たち、そして106番から206番までが宮城県の仙台藩亘理の人たちでした(兵屋番号が59番から始まるのは、琴似に先住していた人たちに配慮したものです)。これとは別に32戸が翌年に発寒に置かれました。
明治9(1876)年、これらの人たちによって屯田兵第一大隊第一中隊が編成されました。初代中隊長は准陸軍大尉の門松経文です。現在の琴似小学校のところには中隊本部が置かれました。琴似神社一帯は練兵場でした。土地改良のために屯田兵が、琴似・発寒・新琴似一帯に排水路を設けたことは、この地域の開発に大きく貢献しました。
15年続いた屯田兵時代
後の制度整備によって屯田兵の任期は、現役3年、予備役4年、後備役13年と定められましたが、琴似屯田の発足時は任期の定めがなく、子孫が屯田兵の地位を相続しました。その後の制度改正によって琴似屯田兵は明治24(1891)年に現役を終えていますから、琴似屯田は15年11か月の長きにわたって現役であったことになります④。この間に西南戦争があり、琴似屯田兵は山鼻屯田兵と共に九州で奮戦しました⑤。
新しい農業の実証地
屯田兵が入植した頃の琴似は、柏の木にハンノキ、ヤチダモが生い茂る密林で、ところどころに草地が広がる原野でした。入村した隊員たちは、毎朝中隊本部に集まり共同開墾に取り掛かりました。しかし、もともと武士だった屯田兵は幹部も隊員も農耕に不慣れで、さまざまな苦労が伝えられています。
しかし、琴似屯田兵は、ひと山当てて故郷に錦を飾ることを夢みる人が多かった時代に、北海道で骨を埋めることを誓い、創意工夫を重ねました。農業経験を持たないだけに、新農法の導入には意欲的で、プラウなどアメリカから輸入した農具を積極的に用いて農業を行いました。開拓使がアメリカより輸入した洋梨などの果樹が兵屋の周辺に植えられました。琴似屯田は、開拓使が導入する新しい農法の実証地でもあったのです。
製麻産業の基点に
開村当時は、北海道では米作が不適と考えられていた時代だったので、絹糸を生み出す養蚕で生計を立てようと桑の栽培が奨励されました。気候や風土が合わなかったため養蚕事業は定着しなかったものの、代わりに戦前に北海道の一大産業であった製麻事業の発展に琴似屯田は貢献しています。
明治22(1889)年、製麻事業普及のために政府がベルギーから農業技術者ウブレヒト氏を招くと、琴似屯田兵は彼について製麻耕作を学んで栽培を盛んにするとともに、帝国製麻(現テイセン)の前身である北海道製麻の創設を支援しました。
屯田の開拓者精神を受け継ぐ
先進農法に意欲的だった琴似屯田を象徴する人物に安孫子孝次さんがいます。孝次さんは、会津出身の屯田兵安孫子倫彦さんの長男で、北海道農業試験場長として北海道に適した農業の確立に尽力しました。北海道の農家に与えられる最高の名誉である「安孫子賞」は孝次さんの名前を取ったものです。孝次さんは営農に苦労する両親を見て農業研究を志したと伝えられます。
明治43(1910)年、現在跡地が農試公園となっている北海道農業試験場の琴似移転には、孝次さんの父である安孫子倫彦さんが先頭に立って尽力しました。農業試験場の移転は、農業地琴似の地位を高め、大正12(1923)年に一級町村となる原動力となりました。
昭和11年、昭和天皇が陸軍特別大演習で北海道を訪れたとき、陛下は琴似の農業試験場を視察されました。このとき陛下をご案内したのが場長であった孝次さん、そして琴似と屯田兵村の状況の説明に当たったのが倫彦さん。親子で拝謁されたことは、琴似屯田関係者にとって大きな栄誉でした⑧。
安孫子孝次さんは、その後、北海道農業会会長、衆議院議員、北星学園園長など、数々の要職を歴任しましたが、現役を退いた後は、父倫彦さんが八軒に移転させた実家に戻り、開拓農家そのままの暮らしを続けました。最後まで屯田兵魂を失わない人でした。
屯田制度の開基として
屯田兵は、琴似についで明治9(1876)年に山鼻、11年江別、14年篠津とつくられていきますが、最初の屯田兵であった琴似屯田の隊員からこれら新設屯田の指導者幹部として多くが採用されています。
明治37(1904)年、琴似兵村は後備役が満期となり、琴似村となりました。前述の安孫子孝次さんが昭和19(1944)年に琴似町長に選ばれるなど、琴似屯田兵関係者は、琴似の行政にも貢献しています。
琴似屯田兵たちは現役を離れても屯田兵としての自覚を失わず、北海道を今の姿にすることに多大な貢献をなしました⑨。琴似屯田の存在感は琴似地域だけにとどまらず全道に及びました。
【主要参考文献】
有馬尚経『屯田兵とは何か その遺勲と変遷』2020・幻冬舎メディアコンサルティング
琴似屯田百年史編纂委員会編『琴似屯田百年史』1974・琴似屯田百年記念事業期成会。
北海道屯田倶楽部編『開拓使最初の屯田兵 琴似兵村 復刻版』2024・北海道屯田倶楽部
札幌市史編集委員会『琴似町史』1956・札幌市。
工藤孝史『或る家の記録「屯田兵屋の百年」安孫子倫彦の家系』1991・山藤印刷
伊藤広『屯田兵物語』1984・北海道教育社
8畳から6畳へ—歴史遺産の完全復元に向けて
兵村番号140番・佐藤喜一郎
琴似神社境内にある屯田兵屋は、明治7(1874)年11月に屯田兵村設置に先だって建設された208戸の一つで、兵屋番号140番の佐藤喜一郎さんに給付された現存する唯一の遺構です①。もともとは現在地から東北方向に約400メートル離れた場所にありました②。
喜一郎さんは、東京府士族の太田浅右衛門の長男で、佐藤家に養子となって屯田兵になりました。鉄砲の名人として知られ、明治22(1889)年に撃ち止めた巨大グマの剥製が北大植物園内の博物館に陳列されています。喜一郎さんが生涯で獲った熊は単独で5頭、共同で13頭に上るといいます。
北海道有形文化財に指定
昭和38(1963)年、喜一郎さんの孫の豊隆さんから兵屋の寄贈の申し出があり、調査の結果、奇跡的なくらいに各部の原型が保たれていることが分かり、北海道教育委員会、琴似屯田子孫会など関係者が協議の上、寄贈を受けて琴似神社境内に保存することになりました。
昭和39(1964)年1月に雪の上をひいて琴似神社境内に移転。雪どけを待って欠けていた煙出し、便所などを補うなどの修復工事を行っています。
この兵屋は、一見すると和風建築ですが、小屋組は洋式のキングポストが導入されており、和洋の技術が混在させつつ近代化を進めた開拓使の初期施策を読み解く貴重な建築といえます。この構法は、後の「赤レンガ庁舎(北海道旧庁舎)」「旧札幌農学校模範家畜房」「豊平館」に継承され、今もなお北海道固有の景観を伝えています。
昭和38(1963)年10月3日に北海道指定有形文化財に指定されるとともに、当時の給与品その他遺品を集めて史跡として一般公開されました③。
「8畳4畳半」が定説に
寄贈時の屯田兵屋旧佐藤家住宅は、和室部分が8畳と4畳半となっていました④。このことから北海道教育委員会は「畳敷き室が、四畳半、八畳の組み合わせで、これを四畳半、六畳とする上原博士の『北海道屯田兵制度』、また山田氏の前掲書以来の定説を訂正した」と判断しました。以降、琴似屯田兵屋の和室は8畳と4畳半であることが定説となりました。
しかし、洋式を取り入れたいくつかの例外を除いて、各地の屯田兵屋は6畳4畳半が一般的であることから、旧佐藤家住宅も後に改造されたものではないかとの疑問がありました。実際、少ない予算の中で急造された屯田兵屋のほとんどが、住人によって何らかの改造を受けています。
なお、琴似2条5丁目の「史跡琴似屯田兵屋跡」は、兵屋番号133番、清野專次郞さんの居宅を昭和45(1970)年に札幌市が孫の信孝さんから譲り受け、復元工事を行って史跡として公開しているものです⑤。建物は琴似神社の旧佐藤家住宅をモデルに忠実に再現したものですから、二つは同じ間取りとなっています。
開村150周年を機に
長年閉鎖状態となっていた屯田兵屋の改修と再公開は、琴似屯田子孫会にとって積年の課題でした。「琴似屯田開村150周年」を控えた令和6(2024)年、琴似屯田子孫会と伝統建築技能集団「建築ヘリテージサロン」との出会いがあり、旧佐藤家住宅の調査が始まりました。また北海道屯田倶楽部も「屯田制度150周年」を受け8畳説6畳説を巡って調査を進めていました。
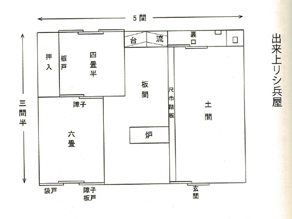
まず北海道屯田倶楽部が復刻を進めていた琴似屯田二世の山田勝伴著『開拓使最初の屯田兵 琴似兵村』(1944)に、屯田兵屋建設の経緯が詳しく紹介されており、「出来上リシ兵屋」と題された図⑥で、座敷が4畳半+6畳間として描かれていることが出発点となりました。
ついで、開拓使が明治8(1875)年1月12日付けの宮城、青森、酒田の3県に対して屯田兵の徴募を求めた開拓使の公文書「府県達第一号」に、4畳半+6畳間の「屯田兵居宅略図」⑦が添えられていることが明らかになりました。屯田兵希望者に具体像を示す資料で、文書の日付に兵屋は完成状態にありましたから、事実を反映した資料と考えられます。
「6畳4畳半」を裏付ける新証拠を発見
決定的だったのは、琴似屯田歴史館資料室に残された琴似屯田兵・大熊忠之助直哉さんの備忘録『覚記』にあった「屯田兵居宅略図」⑧が6畳+4畳半であったことでした。これには「明治8年5月吉日」の日付があり、大熊さんが実際に目にした様子を書き残したものと見られます。
長く注目されること無く琴似屯田歴史館資料室にあったものですが、この調査によって読み解く中で「屯田兵居宅略図」の存在が明らかになったものです。資料価値が確認されたことから、北海道屯田倶楽部ではこの資料の読み下しを進めています。
この後、令和7(2025)年2月に「建築ヘリテージサロン」の関係者による実地検査が行われ、間取り改修の痕跡と思われる箇所が複数確認されました⑨。
これらの根拠から琴似神社内の琴似屯田兵屋旧佐藤家住宅は、当初6畳4畳半で建てられ、その後に改築されたことが確実となりました。
完全復元で史跡としての輝きを
内装や調度品なども忠実に往時を再現した貴重な歴史遺産として多くの参観者があった屯田兵屋ですが、時代とともに関心が薄れ、平成23(2011)年の東日本大震災を契機とした防災意識の高まりから、現在では閉鎖状態が続いています。
それでも、北海道の歴史、ひいては日本の近代史に大きな足跡を残した屯田兵のスタートとなる兵屋の歴史的価値は失われるものではありません。琴似屯田子孫会では、琴似屯田開村150年周年の記念事業として、兵屋の歴史価値を一層高めるべく完全復元を目指しています。
【主要参考文献】
北海道教育委員会編『北海道文化財シリーズ 第10集 屯田兵村』1968・北海道教育委員会
琴似屯田百年史編纂委員会編『琴似屯田百年史』1974・琴似屯田百年記念事業期成会。
北海道屯田倶楽部編『開拓使最初の屯田兵 琴似兵村 復刻版』2024・北海道屯田倶楽部
札幌市教育委員会編『 札幌市の教育 昭和49年度』1974・札幌市教育委員会
北海道教育委員会編『北海道の文化財』1978北海道新聞社

①琴似屯田兵屋旧佐藤家住宅

②琴似屯田兵村配置図(出典:『屯田兵 - 歴史写真集』1984北海道屯田倶楽部に加筆)

③移転間もない琴似屯田兵屋旧佐藤家住宅(出典:北海道新聞社 編『北海道の民家』1971北苑社)

④琴似屯田兵屋旧佐藤家住宅平面図(出典:北海道文化財シリーズ 第10集 (屯田兵村)1968)

⑤史跡琴似屯田兵屋

⑥山田勝伴『開拓使最初の屯田兵』掲載の「出来上がりし兵屋」(出典:北海道屯田倶部)

⑦「府県達第一号」添付の屯田兵居宅図(出典:北海道立公文書館所蔵「開拓使布令録」)

⑧大熊直哉「覚記」(出典:琴似屯田子孫会永峰貴)

⑨令和7年2月18日、琴似屯田子孫会、建築ヘリテージサロン合同調査